




在熊本县深山中,有一座名为“暗黑馆”的奇特宅邸。它建于一个“影见湖”的岛上,第一代主人浦登玄遙古怪而富有权势。宅邸因其外墙、屋顶、门窗全被涂成无光泽的暗黑色而得名。
故事的主人公江南孝明驾车前往暗黑馆。他的母亲最近去世,在今年的愚人节那天曾提及他是养子,与哥哥并非亲兄弟,随后又称这只是个玩笑。山道被倒下的树木堵死,他向一家杂货店“波贺商店”的主人问路,改走另一条岔路。半路突发地震,他驾驶的车辆失控,撞上一棵大树报废。他只好步行前往暗黑馆求助,抵达湖边后,他乘坐一艘小船划向湖心岛。登岛后,他被一股神秘的力量吸引,走向一座独立的十角形塔楼,登上塔顶的阳台,看到了主屋“东馆”二楼一扇亮灯的窗户里有人影。第二次地震来袭,他失去平衡,从阳台上坠落。
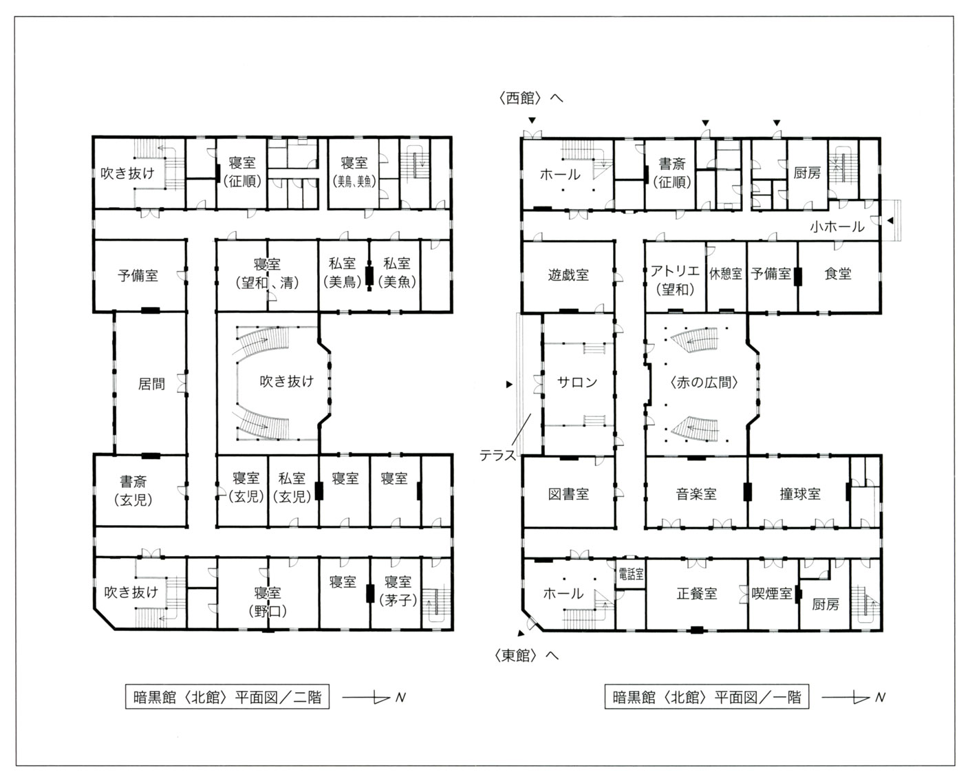
叙事视角切换至一位被称为“中也”的青年“我”,他与浦登玄児一同待在暗黑馆的“东馆”二楼的一个房间里。中也注意到远处的“十角塔”阳台上有一个白色人影,他刚向玄児提及此事,强烈的地震便发生了,那人从塔上坠落。两人立刻冲出房间,途中遇到了宅邸的佣人小田切鶴子。他们一同冲到塔下,在另一位佣人羽取しのぶ的儿子慎太的指引下,发现了坠落的男子。玄児检查后确认男子尚有呼吸,并非致命伤,于是指示鶴子先回屋里准备房间,并立刻去请宅邸的主治医生野口前来诊治,随后与中也一起将该男子抬回屋中。五个月前,中也在东京因一场交通事故失忆,被玄児收留,因为他长得像诗人中原中也,便开始称呼他为“中也”。坠落男子身上发现任何能证明身份的物品。中也和玄児一同前往“十角塔”调查,在男子坠落的阳台上找到了一块怀表,指针停在地震发生的时刻 6:30,背面刻有“T・E”的字样。野口医生报告,该青年性命无碍,但因休克失忆,无法言语。野口医生透露自己的本名是村野英世。中也注意到会客室墙上挂着一幅署名为“Issei”的油画,玄児介绍是画家藤沼一成的作品,题为《绯红庆典》。玄児向中也详细解释了浦登家的家族构成:他的外祖母桜是浦登家的独生女,入赘的外祖父名叫卓蔵,二人育有三女,分别是长女カンナ、次女美惟、小女望和,其中カンナ和入赘的柳士郎生下了玄児。カンナ去世后,柳士郎与美惟再婚。宅邸曾数次遭遇火灾,其中“北馆”完全烧毁后重建。外祖父卓蔵的外甥首藤利吉目前正外出未归。
【間奏曲 一】一个名叫市朗的十三岁少年,独自一人前往传说中的暗黑馆。他在森林中发现了一辆撞毁的汽车,捡起了一个火柴盒,在车旁不远处发现了一具头部被砸烂的男性尸体。“视点”飞到天上。9 月 24 日凌晨 4:20,“他”在睡梦中苏醒,“视点”滑入“他”的体内,发现自己身处某处人家。
9 月 24 日清晨,中也(“我”)被神秘的笑声惊醒,循声追去,发现了一处隐藏在走廊尽头的旋转暗门。他穿过密道和隐藏的楼梯,来到了一个宽阔的旧舞厅,见到一对美丽的连体双胞胎美鳥和美魚。她们的身体从侧腹到腰部完全连接在一起,拥有八个“手足”,自称“螃蟹”。姐妹俩离开舞厅,中也似乎听到哪里传来男人说话的声音。

中也从中庭观察暗黒館的整体布局,注意到了位于庭院中央的一个祠堂般的神秘小建筑。他进入“东馆”,意外地发现了一处通往上方但最终被天花板堵死的死胡同楼梯。他在二楼的居室里遇到了玄児的表兄弟“自称艺术家”首藤伊佐夫,回到中庭,见到一个身穿黑袍、戴着兜帽的神秘人影从那个祠堂般的建筑里出来。他进入该建筑调查,发现里面有一扇带铁栏杆的门,通往地下的阶梯,并似乎听到了从地下传来的微弱呻吟声。返回途中,他遇到了宅邸的另一位核心成员浦登征順,得知那个祠堂是浦登家的墓地,也被称为“迷惑的牢笼”。佣人羽取しのぶ报告坠塔的青年已经恢复了意识。青年尚未恢复说话能力,但在玄児的引导下,用笔写下了自己的姓氏“江南”。
【间奏曲 二】十三岁少年市朗为了在同伴面前证明自己的勇气,独自一人前往传说中的暗黑探险,途中发现了江南撞毁的汽车和附近一具头部被砸烂的男性尸体。极度惊恐的他逃至湖边,从一座石屋的窗缝偷看到一个驼背的男人正在磨刀。一场地震导致石屋部分坍塌,将该男子压在了下面。市朗再次逃离,躲进了湖边停车场的一辆吉普车的帆布篷下,在恐惧中等待天明。“视点”滑入江南体内,他无法记起自己的名字,脑海中只闪过母亲临终前的痛苦画面。
中也与玄児前往“十角塔”调查,看到了佣人之子慎太的身影。玄児向中也透露,童年时他曾被父亲柳士郎下令囚禁在这座塔的囚禁室中。岛屿西北角连接对岸的浮桥已经断裂,这意味着暗黑馆所在的岛屿已彻底与外界隔绝。湖水的一部分变成了不祥的红褐色,玄児解释说,这与当地一个关于“人鱼之血”的传说相符,宅邸内收藏的一幅藤沼一成的画《预兆》描绘的正是这一景象。在浦登家的传说中,湖水变红是吉兆。玄児提到カンナ和美惟之间还有一个叫麻那的女孩,五岁就和清得了同样的病,还证实中也看到的黑衣怪人是负责守墓的鬼丸老人。玄児还说起第一代馆主夫人ダリア住在“西馆”,今天是她的生日和忌日,也被称作“ダリア之日”。宅邸的船夫兼管理员蛭山驾驶的船只猛烈撞岸,身负致命重伤,导致所有人被困在岛上。野口医生在进行紧急处理后,判断其伤势过重,有些伤口似乎是在撞船之前就有了,已无生还可能。中也遇见了患有早衰症的男孩清,并首次见到了威严但近乎失明的大家长浦登柳士郎。柳士郎无视这起死亡事故,坚持“ダリア之日”的仪式必须照常举行。玄児透露他小时候曾被父亲柳士郎囚禁在塔顶的房间里。中也回房途中遇到了望和,她正在疯狂寻找儿子清。中也在音乐室再次见到了弹琴的双胞胎姐妹美鳥和美魚,她们透露母亲美惟自从生下她们后,就一直处于精神恍惚的状态。中也在隔壁的游戏室看到了一座奇特的机关钟,每到整点就会有木偶出来伴随着音乐跳舞。
9 月 24 日晚,中也被邀请参加在“西館”(又称“ダリア之馆”)举办的晚宴。浦登柳士郎主持了这场气氛诡异的仪式,席间,中也被迫吃下味道奇怪的红酒、面包、浓汤,所有人都叫他“把那个肉吃下去”。中也出去上厕所,回来时走错楼层,来到书房门口。鬼丸透露 18 年前的同一个晚上,第一代主人浦登玄遙在这座书房内被谋杀,而他的女婿卓蔵也在当晚自杀,从此房间便被封锁。
【间奏曲 三】市朗目睹异形男子从倒塌的大架子下挣脱,驾驶摩托艇向小岛开去,猛地撞在石墙上。市朗跑进一间废屋,遇到了一个名叫慎太的男孩,自称母亲叫羽取しのぶ。慎太为他提供了食物和一盏提灯,留下市朗一人独自在小屋过夜。市朗发现书桌抽屉里装满了慎太收集的“宝物”,包括一个装有潮湿照片的旧钱包,还有底层抽屉里的一具人类头骨。江南在暗黑馆内疗伤,目睹野口医生带人用担架将一个重伤号抬进馆内。他在馆内漫无目的地游荡,从镜中看到陌生的面孔,想不起来自己是谁。
中也被浦登玄児叫醒,得知前一天重伤的蛭山丈男在“南馆”房间内被人用他自己的皮带勒死,野口医生证实死亡时间在凌晨 2-4 点。宅邸主人浦登柳士郎为了避免外界干预,命令众人掩盖谋杀案的真相,要求野口医生出具一份意外死亡的虚假诊断书。鬼丸告诉中也,大家早知道 18 年前杀死浦登玄遙的凶手是谁,却没有抓他。玄児和中也询问了相关人员在凌晨 2-4 点的不在场证明:小田切鶴子声称在自己的房间休息,野口医生则说他与首藤伊佐夫一同饮酒至深夜后便醉倒了。第一发现人羽取しのぶ声称为了防止儿子慎太进入,在通往案发卧室的储藏室暗门上贴了一张红色的彩纸作为封条,这张彩纸在前一晚还完好无损,但在案发后发现从中间撕裂了,这说明凶手利用暗门绕过了睡在客厅的しのぶ,直接进入卧室行凶。只有熟悉宅邸结构的内部人员才可能知道这扇暗门的存在,厨师宍戸要作证实,馆内的居住者和老员工基本都知道这扇暗门。

中也与玄児在馆内遇到了正在疯狂寻找儿子清的浦登望和,玄児解释了清患有早老症,望和因此精神失常。中也在舞厅见到了一脸茫然的江南,觉得他的脸似曾相识。中也与浦登征順在沙龙交谈,征順讲述了自己来到浦登家的经历,提及了仿佛被束缚在暗黑馆的宿命感。电视上播放了一个关于濑户内海上的“时岛”的节目,岛上有一座奇妙的西洋宅邸,屋顶漆成铜绿色,是建筑师中村青司的作品。首藤茅子因丈夫首藤利吉逾期未归而情绪崩溃,大喊大叫。馆内对外联络的电话线路也已中断,暗黑馆已陷入完全的孤立状态。之后,双胞胎姐妹美鳥美魚带中也参观了“红色大厅”,目睹了她们精神失常的母亲美惟在一张空桌前“无声演奏”。据说那里原本是旧馆的音乐室,摆放着她钟爱的管风琴。
美鳥、美魚带着中也参观了她们“二合一”的房间。美鳥认为杀害蛭山的凶手是しのぶ,美魚觉得是清。她们向中也展示了她们心爱的宠物猫“チェシャ”,但这只猫其实是一具标本。姐妹俩突然提出了希望能成为中也的新娘,玄児及时出现,化解了中也的尴尬。玄児推测凶手之所以要杀死一个濒死之人,是因为他不了解医生诊断,不知道蛭山的伤势致命。中也则认为蛭山掌握了与 18 年前旧案相关的某个秘密,所以被人灭口。玄児透露 18 年前的凶手是卓蔵,他在杀人后畏罪自杀,而且在凶案现场发生过一次“密室消失”,唯一的目击者正是玄児自己,但他已不记得当时经过。玄児的失忆源于 18 年前冬天烧毁旧“北馆”的一场大火。
【间奏曲 四】9 月 25 日,市朗做噩梦醒来。下午 1 点,慎太给市朗带来面包,证实蛭山死了。市朗问起抽屉里的白骨来历,慎太说是在屋外捡的。慎太将一根带着银锁链的怀表放入抽屉,指针停在 6:30。中午 1:45,江南回到客厅,听到馆内有人说“蛭山死了”,又遇到了疯狂找孩子的望和。江南回想起母亲说“你不是我的孩子”,发现原本放在枕边的怀表不见了。市朗从后门进入岛上的建筑,遇到醉酒后行为怪异的首藤伊佐夫,吓得从后门逃出。晚上 6:45,市朗发现“红色大厅”的一扇窗户有裂纹,用手一推,玻璃碎裂。
中也偶然在图书馆发现一本宮垣杳太郎的推理小说《冥想诗人之家》。玄児闯入,带着中也和野口医生赶到浦登望和的工作室,发现门被一尊常人难以移动的青铜雕像堵住。三人合力移开雕像,进入室内,发现望和已经被人用她自己的丝巾勒死在画室地板上,旁边一只摔坏的时钟,时间定格在 6:35。征順证实见到望和 5:50 进入工作室。与工作室相邻的“红色大厅”有一面窗户玻璃碎裂,只剩一个窗洞,通向回廊的右侧楼梯口有新鲜的泥泞脚印。一场雷击导致全馆停电,在闪电的光亮中,他们看到了一个躲藏在黑暗中的少年人影。玄児和中也在暴风雨中追逐少年,在一处“人骨之沼”将他堵住。中也被泥沼中爬出蜈蚣蜇伤,在极度的疼痛之下当场昏厥。

中也做噩梦惊醒,发现自己躺在“北馆”二楼玄児的卧室里,玄児正从他手臂的静脉中拔出一根注射器。玄児告知中也已昏迷五个小时,左手被蜈蚣咬伤,已由野口医生处理。玄児透露,闯入“红色大厅”的少年名叫市朗,因山体滑坡而被困于此,如今正发着高烧。在中也的追问下,玄児承认刚刚给他注射了自己的血液,声称是初代玄遙与ダリア直系子孙的血。玄児解释,他的出生导致了母亲カンナ的死亡,父亲因此憎恨他,所以才会把他关进“十角塔”。中也提出晚宴上的肉是人鱼肉,但玄児说人鱼肉并不存在。两人前往望和的画室调查。玄児说柳士郎之所以拒绝报警,是因为暴雨冲出了埋有十三具人类骸骨的“人骨之沼”,传说这些人是ダリア所杀。玄児和中也讨论了各人在 5:50-6:35 的不在场证明。中也观看望和绘制的巨幅壁画,画中一个长着翅膀状突起、拥有三根脚趾的怪物正在侵犯一名女性,下方画着数朵美人蕉。玄児指出,花的名字“美人蕉”正与其亡母カンナ同名。
玄児将中也带到画室旁的休息室,启动壁炉内的机关,打开了一条通往“红色大厅”的秘道。玄児指出,凶手没有选择秘道逃脱,而是打碎玻璃窗,说明他不知道秘道的存在。这与第一起蛭山被杀案中,凶手必须知道“南馆”的密道才能作案的结论形成了悖论。二人逐一排查,发现满足条件的只有慎太和野口医生,但野口医生在第二起凶案中有不在场证明,而慎太在智力上不具备犯下如此复杂罪行的能力,推理因此陷入僵局。中也想到了某种遗漏的可能性,但决定暂时保密。玄児取出两把合配的钥匙,决定带中也前往馆内真正的禁地——位于“西馆”(又名“ダリア之馆”)的第二书斋,讲述 18 年前玄遙被杀的密室经过。

“视点”回溯至 18 年前的 9 月 24 日,“ダリア之日”的夜晚。年仅九岁的浦登玄児从长年被幽禁的十角塔中获释。他去探望乳母諸居静,但她却对他使用尊称,告诉他既已参加过宴会,便不能再像从前那样亲昵。玄児回想起与父亲浦登柳士郎、祖父浦登卓蔵、曾祖父浦登玄遙、两位姑姑浦登美惟、浦登望和共同参与的诡异宴会。他在走廊上无意间听见姑姑们的对话,得知自己被父亲憎恨,决心向曾祖父玄遙寻求真相。晚 11:45,“视点”移动到身处西馆第二書斎,一人询问玄遙为什么墙上会有一个空无一物的画框,他在背后悄悄握了一根烧火棍。玄児在老仆人鬼丸的带领下来到第二書斎门口,听见微弱声响,进屋发现玄遙倒在地上,房间深处有一名面目狰狞的陌生人。柳士郎从走廊尽头的黑门走出,而室内的人影在转瞬间消失无踪。柳士郎确认玄遙头部遭到重击致死,身旁掉落他的海泡石烟斗和一根烧火棍。浦登卓蔵在“北馆”自己的寝室里用和服腰带在门上上吊身亡,壁炉里少了一根烧火棍,书中留下一张暗示追随亡妻桜而去的字条,整起事件以“卓蔵杀害玄遙后自杀”结案。浦登家为避免丑闻外扬,勾结了医师村野英世将事件隐瞒。两个月后,北馆发生大火,年幼的玄児没来得及逃生,据父亲说死过一回,后又复活,左手腕上留下了与曾祖母ダリア相同的“圣痕”。

讲完过去,玄児带中也进入“ダリア的房间”,阐述了浦登家的历史与信仰体系。他们据信是受迫害的切支丹后裔,因背弃信仰而转向“爱黑暗胜于爱光”的哲学。创始人浦登玄遙在欧洲遇见自称“魔女”的ダリア,依靠饮其血而获得了不死性。此不死性分为三阶段:第一阶段为“不死”,第二阶段为“再生复活”(玄児在火灾中所达成),第三阶段则是无人能及的“不老”。这个血脉的代价是后代中有机率患上如清一般的早衰症。ダリア年老色衰,玄遙与亲生女儿乱伦桜产下女儿カンナ。这项背叛使ダリア陷入疯狂,为了恢复青春,达成“不老”,她掳掠并折磨村民,吞食其血肉。实验失败后,她指示家人杀死自己,将自己的血肉腌渍保存,每逢其生日分发食用,以传承她的不死力量。医院记录表明,玄児的血型是 A 型,而柳士郎和カンナ都是 B 型,唯独卓蔵也是 A 型,这意味着玄児是外公卓蔵与カンナ生下的“罪恶之子”。柳士郎知道玄児并非自己亲生,所以从小将她囚禁在“十角塔”。玄児进一步指出,望和遗留的壁画描绘了一个白发恶魔侵犯カンナ的场景,这说明他真正的父亲其实是曾祖父(同时也是祖父)浦登玄遙!

【间奏曲 五】9 月 26 日凌晨 4 点,江南从梦中醒来,玄児告诉他望和的死讯。江南找不到钱包,回想起独自登塔的经过。美鳥和美魚问他是不是杀人狂。柳士郎问江南怀表在哪里,得知遗失后显得十分失望,离去时念叨着“利吉”的名字。市朗在“北馆”西侧醒来,被玄児问了许多问题。市朗回想起在“红色大厅”借着闪电的光芒,瞬间瞥见了犯人的脸,觉得似曾相识。
玄児带中也来到“ダリア的房间”下方的隐藏房间,那里挂着一幅由画家藤沼一成所绘的巨幅油画,画中描绘了一只困在蜘蛛网中的的怀表,时间停在 6:30,与江南遗失的怀表一致。玄児解释,宅邸中那些看似诡异的空画框,其实是无法映照出影像的镜子,而眼前的画框则隐藏了通往第二书房的机关,也就是一道旋转暗门。这解开了 18 年前凶手如何从密室消失的谜团。中也要求玄児出示“不死”存在的决定性证据。玄児揭露 18 年前被杀害的玄遙,在死后一天竟奇迹般地“复活”,但却成了失去心智的废人,被关入了家族墓地“迷失之笼”。仆人鬼丸老违背命令,18 年来持续秘密地喂养他。玄遙至今已 110 岁,如怪物般在地下墓穴中存活。

次日正午,中也在舞厅遇到美鳥和美魚。美魚说宅子里经常能听到“幽灵的声音”,其实是穿过天花板的传声筒。中也询问是否能通过外科手术分离身体,两人歇斯底里地拒绝,哭喊“宁死也不愿被分开”。中也推测凶手就是这对双胞胎,因为第二起命案的秘道狭窄,只有单人能通过,而连体双胞胎必须打破窗户逃走。中也与伊佐夫等人在玄关大厅汇合,突然再次发生地震,悬挂在天花板上的巨大吊灯坠落,砸向正走在楼梯平台上的双胞胎。两人虽然避开了直接撞击,却双双滚下楼梯,身体竟然完全分离。
野口医生证实双胞胎姐妹早已接受了分离手术,但在精神上拒绝分离,只有在没有第三者的时候才会分开。玄児指出,既然她们独处时可以分开行动,那么她们在作案时就没有必要破窗而逃,从而否定了犯人说。玄児提到市朗在闪电光芒中目击了犯人的脸,并觉得面熟,但与馆内居民对质却无人匹配。在市朗藏身之处发现了可能是被慎太偷走的江南的怀表和钱包,以及市朗自己黑色汽车旁捡到的火柴盒。中也想到了一个新的犯人可能:18 年前本应被杀害的初代馆主浦登玄遙。他和玄児一同前往中庭的“迷惑之笼”,确认南京锁没有撬动的痕迹。台阶前面发现了三趾脚印,与画中的怪物吻合。佣人鬼丸断言玄遙从未外出,且钥匙只有他一人持有。
市朗确认中也和慎太都不是他见到的犯人。野口医师赶到,宣布电话已恢复,已为美魚向熊本的医院请求了救护车。众人就是否报警展开了争论,但决定先与柳士郎商议。野口暗中调查了茅子的手记,发现其丈夫利吉去了一个名为“永风会”的地方。中也检查江南的钱包,发现了一张藏起来的黑白旧照片,上面是一个年幼江南和一位推测是其母亲的女性,背面有“……月 7 日……岁生日”的字样。玄児打电话查出“永风会”是大牟田的一家医院。市朗提到在森林中坠毁的汽车附近,看到了一具被自己裤子皮带勒死的中年男性尸体。中也推测死者是首藤利吉,在三天前便已遇害。中也揭示 18 年前的密室真相。
“馆系列”集大成之作,主打两个叙述性诡计,鸿篇巨制,伏线众多,外加一起凑数的密室。多视点叙述将同一件事反复叙述,在一定程度上影响了阅读体验,但结尾反转还是十分过瘾。本作是“馆系列”的起点,放到最后读会有额外感触。抛开推理,“吸血鬼家族”的故事充满哥特式的阴冷氛围,扣人心弦。
