

风之丘高中即将迎来一场风波。此时正值社团活动时间,犯人将三年级放送部部长朝島友樹约至体育馆后方。朝島肩背沉重的黑色摄像机包,对阴谋毫无察觉。犯人假意求助,交代了具体的行动细节,实则盘算着杀人夺物的逆转计划。朝島深信不疑,这场完美犯罪的序幕就此拉开。
案发当日,大雨倾盆。下午 3:07,女子乒乓球部一年级生袴田柚乃与好友野南早苗冒雨前往旧体育馆。途经走廊时,柚乃瞥见二年级女生針宮理恵子正打着伞,满脸不悦地站在洗手间窗前。两人进入馆内,顾问増村老师与部长佐川奈緒已在准备。柚乃发现舞台那厚重的红色帷幕竟罕见地降了下来。3:15 左右,馆内回荡起两声沉闷的巨响,如同敲击太鼓。紧接着,演剧部部长梶原和也赶来排练,指示部员升起帷幕。眼前的一幕令人惊恐:身穿深蓝色背心的朝島友樹瘫坐在演讲台旁,胸口插着一把银色细长小刀,已然断气。

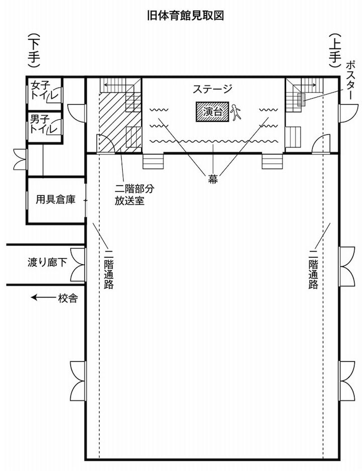
神奈川县警仙堂警部与年轻刑警袴田優作(柚乃的哥哥)赶到现场。法医推断死亡时间约为下午 3 点。凶器小刀像塞子般堵住伤口,现场几乎没有血迹,也未留下指纹,警方推断凶手作案时戴了手套。保土谷署刑警白戸发现,舞台右侧帷幕后的暗处有一大滩血迹,地面留有一条长约 5 米的黑色拖拽痕迹,直达演讲台。警方据此判定,右侧舞台侧翼才是第一案发现场。死者口袋里装着纸巾、钥匙、手机、钱包,臀部口袋里有一张无封面的绿色 DVD,胸前口袋的学生手册被鲜血浸透,日程备忘录难以辨认。舞台右侧有一扇通往室外的铁门,左侧有一扇通往走廊与洗手间的木门,走廊尽头则是通往室外的玻璃门,正面则是降下的帷幕。案发时,铁门与走廊尽头的玻璃门均从内侧反锁,体育馆所有窗户也已锁死,排除了其他出入口。加上正面有乒乓球部成员把守,现场形成了一个毫无破绽的物理密室。体育馆后门外的泥地上留有两道模糊的脚印。右侧楼梯阴影处,散落着一张干瘪的文化祭海报,上面遗落着一条解开的女生红色领花。舞台左侧男洗手间最里侧的隔间内,倒放着一把无主的高级男士长柄黑伞,伞柄末端有 2 厘米长的划痕,伞身湿透。保洁员证实,午休结束时还没有这些物品。
警方在体育馆入口展开问询。増村老师与佐川部长于下午 3 点整一同进入馆内。佐川所在的二年级 D 班提前十分钟下课,她得以早早换装赶来。3:03,朝島空手进入左侧侧翼,帷幕降下。3:05-3:10,増村曾返回职员室取遗忘物品。佐川作证,3:08 有一名娇小女生跑进舞台后方,未再出现。然而,針宮理恵子一直站在室外避雨,坚决否认有人经过。3:15,演剧部的梶原、三条愛美、志賀慶介、松江椿四人推着沉重的手推车,来到走廊尽头的玻璃门外。梶原用备用钥匙开门,车轮却卡在 10 厘米高的门槛上,堵死了出入口。众人发现尸体后引发骚乱,志賀与松江将车退出门外,进入馆内,关门时志賀顺手将玻璃门从内侧锁死。仙堂警部梳理逻辑:右侧铁门钥匙由职员室严格管理,左侧玻璃门仅梶原持有备用钥匙,凶手无法从外侧锁门。既然舞台后方门窗紧闭,凶手若要逃离只能从正面离开,但这必然会被目击。在増村离开的 5 分钟盲区内,仅有佐川与死者独处。既然針宮未看到任何人,仙堂断定神秘女生纯属佐川虚构,指控佐川奈緒即为唯一真凶。
柚乃在走廊偷听到了这番残忍的推理,无法接受敬仰的部长竟被指认为杀人犯。傍晚,第一校舍玄关处,学生会副会长八橋千鶴主动安抚了崩溃的柚乃,为她指明了破局之路。柚乃重燃希望,在夕阳斜照中冲向文化部大楼,向传说中的二年级天才少年裏染天馬求助。
裏染住在“打不开的活动室”,曾获全科满分。柚乃察觉其手头拮据,提出由乒乓球部凑出 10 万日元作为报酬,他当即接下委托。裏染带着柚乃强行介入临时审讯室,以“黑伞”为切入点,用严密的逻辑链证明了佐川的清白。
面对这无懈可击的逻辑,仙堂哑口无言,警方无奈解除了佐川的嫌疑。裏染信步走到角落,检查死者遗物,敏锐察觉其裤袋分布异常。左袋仅有沾血纸巾,左胸袋是被血浸透的手册,而沉重的钥匙束、手机、钱包全塞在右侧口袋。裏染用手帕垫着手,取走死者挂着“不闻猴”的放送室钥匙,带众人前往二楼局促的放送室勘查。室内老旧的 DVD 影碟机和 VHS 录像机共用电源,必须交替插拔。面板按键已坏,只能使用一个藏在废弃点心盒里的通用遥控器切换模式。演剧部长梶原提到,昨日离开匆忙,遗忘了录像带。柚乃为 DVD 插电后,裏染按下遥控器,播放了死者拍摄的宣传片。梶原拔下 DVD 为录像机通电,拿起同一个遥控器,退出了录像带。
次日清晨,警方通过化学试剂复原了被鲜血浸透的学生手册。备忘录写着:“27 日下午 3:10,旧体育馆。降下帷幕,保持上手(舞台右侧)的门锁开启”。仙堂确认凶手利用死者,从内侧解开的右侧铁门潜入。裏染带领柚乃、新闻部部长向坂香織排查涉案人员的不在场证明。演剧部副部长三条愛美声称案发时独自在洗手间,无法自证。学生会方面,二年级 D 班会长正木章弘自称在备品室整理文件,给副会长打过电话。副会长八橋千鶴称去买饮料,会计椎名亮太郎称在图书馆,皆无确凿证据。放送部的巣鴨康平、蒔田千夏也无有效证明。仙堂得知針宮理恵子曾因勒索,被朝島拍下视频,坚信其为销毁录像杀人,准备收网。裏染毫不关心动机,指出針宮在馆外避雨期间被频繁目击,其空隙时间最多 2-3 分钟,不足以完成潜入、杀人、布置现场、制造密室,将其果断排除。回到活动室,裏染将矛头直指三条愛美,阐述了“细线诡计”——三条利用细线套在右侧铁门内侧旋钮上,趁演剧部手推车堵门及部长探头查看的死角,在左侧拉动细线远程反锁右门,再收回细线。
28 日上午 8:30,裏染等人在前往体育馆路上,偶遇八橋千鶴、椎名亮太郎在备品室外搬运文件。千鶴态度超然,对案件发表了意味深长的评论。裏染等人在舞台上实验细线诡计。然而,现实的物理阻挠粉碎了推理:旧体育馆舞台宽广,超过 10 米的细线无法传递足够拉力,陈旧的门锁旋钮又生锈僵硬,操作屡屡受挫。细线诡计宣告破产,密室之谜回到原点,裏染备受打击。众人回到活动室,香織随口抱怨没带雨伞。听到“雨”和“伞”,裏染如遭雷击,狂吼自己被错觉蒙蔽,终于解开了真相。同时,警方接到一年级生早乙女(針宮理恵子的秘密男友)的线报,案发当天 3:14,早乙女赴針宮之约时,清楚看到秋月美保空手未打伞,从右侧铁门跑出,对着铁门用力敲击两下,之后冲入大雨。早乙女作证,他到达时泥地只有一道脚印,警方勘查时发现的另一道脚印,其实是早乙女之后进入体育馆时留下的。裏染迅速指示優作排查监控,确认全天无任何人携带两把以上雨伞入校。
秋月因案发当日淋雨逃走,高烧请假在家。裏染拜托交游广阔的新闻部部长香織,通过电话将她叫出,抢在警方上门前接回活动室保护。秋月吐露,朝島原计划在 3:10 交涉归还那张记录学生恶行的光盘。他为了避人耳目,选择在降下帷幕的旧体育馆舞台,因为知道佐川奈緒每天最早到体育馆,若遇危险,便可冲出帷幕向她求救,将其作为安全保险。朝島安排秋月 3:10 潜伏在左侧作为后手,而她自己提前在 3:08 到达现场。秋月进入后,惊恐地发现朝島已被刺死。她听到凶手从二楼广播室走下的脚步声,逃至右侧楼梯阴影处的文化祭海报后躲藏。海报上平放着凶手留下的物品:一把高级男式黑伞,伞柄末端有划痕,以及一个装有泛白旧运动鞋的塑料袋。秋月为了逃生,解开了右侧铁门的锁,又为将凶手困在现场,解下自己的红色领花,丢在黑伞上作为警告。她推测,凶手看到原本放好的伞上多出了领花,锁好的门解开,定会意识到现场另有目击者,便不敢从这扇门逃离。她从右侧铁门逃出。凶手企图开门时,极度恐惧的秋月从室外重击两下铁门,试图阻止,随即清晰地听到门内传来重新反锁的“咔哒”声。裏染揭示:秋月当时自认为没能拦住凶手,但正是她无意间的敲门威吓,迫使惊恐万分的凶手将右侧铁门死死反锁,阴差阳错地造就了这个完美密室。
当天下午,大雨未歇。20 多名涉案人员集中在第一校舍大会议室。裏染步入讲台,宣告杀害朝島的真凶就在人群之中。
案件解决后的一天,仙堂警部与刑警優作造访活动室,带来了从搜查经费中拨出的 5 万日元悬赏。仙堂展示了在正木住处找回的无标题青色 DVD 光盘。录像显示,期中考试前夕,正木潜入教员室偷印试卷。正木依靠作弊维持高分,朝島察觉后拍下证据,以此要挟其认错。正木为保住会长地位,假借交涉之名,在旧体育馆痛下杀手。临走前,裏染满不在乎地向柚乃坦言,由于警方当时未掌握决定性物理证据,那场黑板推理秀,纯粹是为了在心理上营造压迫感,将正木逼入死角,使其自行认罪。
7 月的某个星期一清晨,学生会副会长八橋千鶴来到了新闻部活动室,裏染早已在此等候。
“平成 Ellery Queen”的出道作,展现了纯粹的逻辑流风格。推理焦点集中于“黑伞”、“遥控器”、“遗留物重量”等微小物理线索,通过严苛的条件排查,层层推导出凶手的行动轨迹与身份。密室构建巧妙融合了“物理密室”与“盲点逃脱”,逃脱手法略显古典,而且对时机要求严苛,但与校园社团元素的结合浑然天成。整体而言,本作以工整的逻辑链与全景式的伏线回收,构筑了坚实的解答,是新生代推理中不可多得的范本。